Our Process

Signature Millwork manufacturers and installs architectural millwork in commercial and distinguished residential environments. In operation since 1992 the company has a strong client base in the Dallas Fort Worth area with recent opportunistic expansion both in and out of state. During that time, Signature has earned a reputation of integrity, quality craftsmanship and on-time completion in an industry not renowned for this combination of qualities. We specialize in both wood, plastic laminate, acrylics and specialty finishes. The company sources its business from both new construction, remodels and renovation work.

Signature Millwork started in 1992 with 4 employees and less than 3,000 square feet of warehouse space. The business has grown to over 40 employees and 60,000 square feet of warehouse space.

Our process of custom architectural millwork development begins with architectural drawings. We manage the process from project bid through field installation; to include the following:

Project scope review and bid

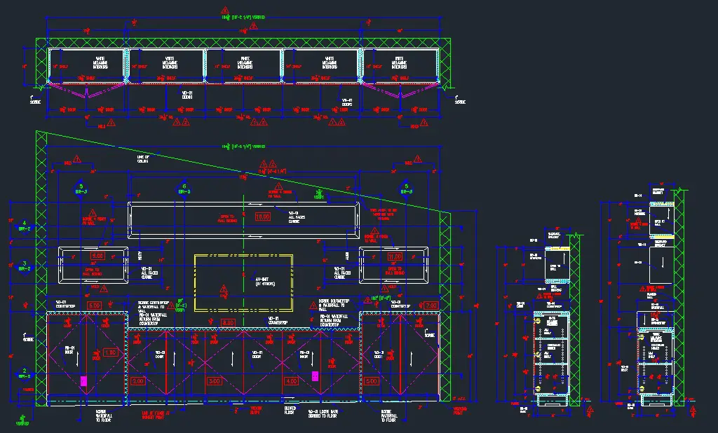
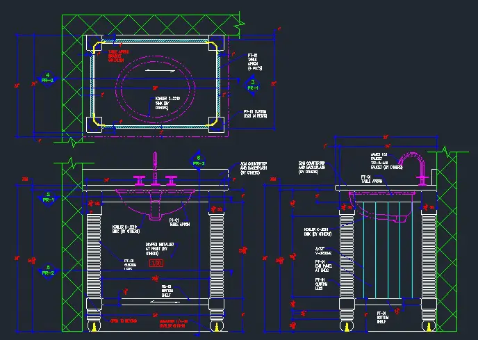
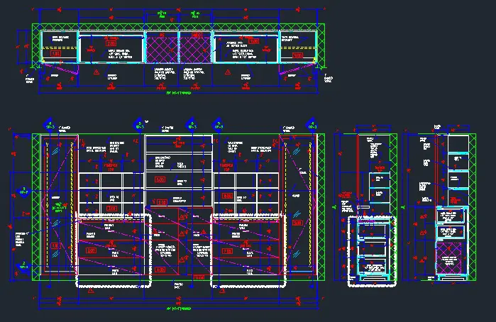
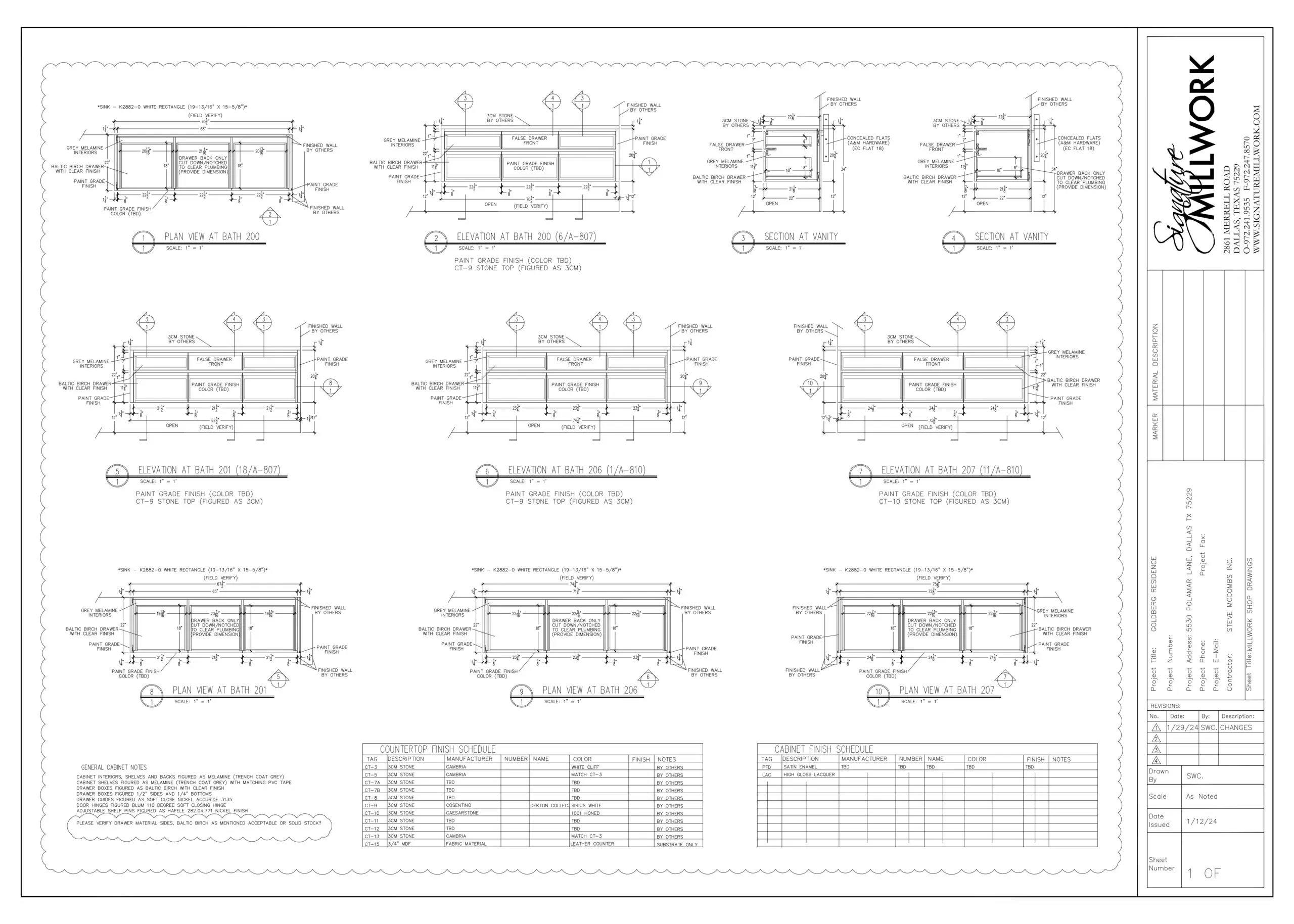
Design for constructability utilizing Architectural Woodwork Institute (AWI) requirements and adapting conceptual and architectural drawings to work with field conditions. We utilize both Microvellum and CAD technologies to produce detailed shop drawings.

Build premium and custom grade wood and plastic laminate products including casework, cabinetry, sequenced wall panels, kiosks, display cases, and furniture.

Custom finish including full furniture fill, custom stains and finishes.

Installation is a customer satisfaction differentiator in the industry. We install our own millwork in addition to products from other national architectural firms. Our experienced team anticipates issues before they occur and become a trusted member of the GC team.